Skip to main content

Lot 2

191C Mill Road

FOR SALE

Price by Negotiation

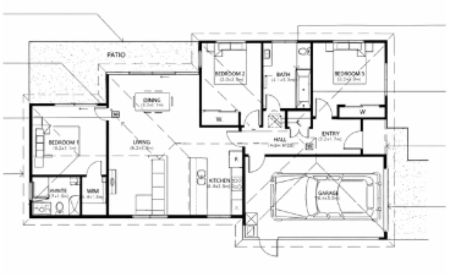
BEDROOMS

3

BATHROOMS

2

LIVING AREAS

1

GARAGE

1

FLOOR SIZE

129m²

Step into easy, modern living with this fantastic House and Land Package in the heart of Otaki. Designed for comfort, practicality, and style, this brand-new home is perfect for the first home buyers, downsizers, or investors looking for exceptional value in a growing town.

For more information




Email this Page